打造一个沉浸感十足的家庭影院,是许多影音爱好者的梦想。然而,从复杂的设备选购到专业的设备安装调试,整个过程充满了挑战与“陷阱”。任何一个环节的疏忽,都可能让您投入的精力与金钱付诸东流,最终效果大打折扣。别担心,这份详尽的避坑指南将为您保驾护航。我们将从前期规划、核心设备选购、音效优化、智能集成直到预算管理,为您系统性地揭示各个环节的常见误区,并提供专业的解决方案,助您轻松绕开弯路,一步到位地构建出效果卓越的理想型私人影院。
一、前期规划:决定成败的关键第一步
1、忽视空间声学处理:隔音与吸音扩散的重要性
一个常见的误区是认为只要音响够好,音效就一定出色。然而,未经处理的房间会产生声音反射、驻波和共振,严重影响音质清晰度和声场定位。您需要关注两个核心概念:

2、房间比例无所谓?
关于房间房型尺寸,很多人觉得莫名其妙,本来能拿出了做家庭影院的房间就不大,再改造一下更小了得不偿失。但是,当你把家庭影院组建好以后,发现不论怎么调整,低频都是轰隆隆的驻波,听得头晕脑胀上吐下泻,才会想起房间比例有问题。
推荐房型比例(注:黑粗线上为最佳比例,阴影区域均为合理范围)
我们推荐最佳的房间形状是长方形(干万不要选用房间长宽高比例为整数倍的房间做视听室,否则强烈的驻波会让您前功尽弃),拒绝使用正方形、弧形及其他不规则形状的空间做完影音室。
原因是正方形、弧形这些空间都会产生严重的声学缺陷,为后期的声学设计带来巨大的困难,在花费数倍精力、时间、金钱的情况下,取得的结果仍然不尽如人意。
L形房间结构不对称,会对声场形成干扰,影响声场均匀度,使得听音者的声场定位有偏差。
弧形房间会造成声能过分集中,使聚集点的声音嘈杂,而其他区域声音较低,扩大了声场不均匀度,严重影院听众的听音条件。
建议一定要重视房间比例,如果是房间长宽高比例为整数倍或其它形状的房间,那就得改变房间某一边或者更多边的尺寸,尽可能地减少共振频率叠加,尤其是轴向模式,目标就是获得更均匀的模态分布,尽可能达到建议的共振频率间隔>5%,这些所选的原始空间如果解决不了就需要声学设计阶段进行处理,前提是尽量选择良好比例的房间来做影音室。
3、盲目追求大尺寸:画面与观看距离的匹配原则
“越大越好”是选择屏幕时最容易陷入的误区。过大的屏幕在较近的观看距离下,不仅会使您无法看全整个画面,还容易因看到像素点而产生眩晕感,破坏沉浸式体验。在规划时,您应根据座位的观看距离来确定理想的屏幕尺寸。您可以参考以下行业建议:
追求强烈临场感:可以按0.03 × 屏幕尺寸(如100寸→3.0米)来规划。
追求轻松舒适:可以稍微拉远一点,按0.037 × 屏幕尺寸(如100寸→3.7米)来安排。
按画面分辨率选择(最科学)
这是更科学的算法,因为高分辨率允许你坐得更近,享受更大视角,同时不会看到像素点。简单来说:分辨率越高,就能离得越近。
4K分辨率:最佳视距可以缩短到屏幕高度的1.5倍左右。
1080p分辨率:最佳视距约为屏幕高度的3倍左右。
阿强认为根据画面大小和房型摆位可以在4K和2K分辨率推荐的区间来调整适合自己的观影位置。
按视听比例选择(最发烧)这个方法将画面和声音结合起来考虑。在规划座位时,可以保证座位与左右主音箱形成一个60°左右的夹角,这样能获得最准确的声音定位。在此基础上,再根据这个距离反过来推算适合的画面尺寸
选择一个合适的尺寸,确保画面能舒适地充满您的视野,这才是获得影院感的关键。
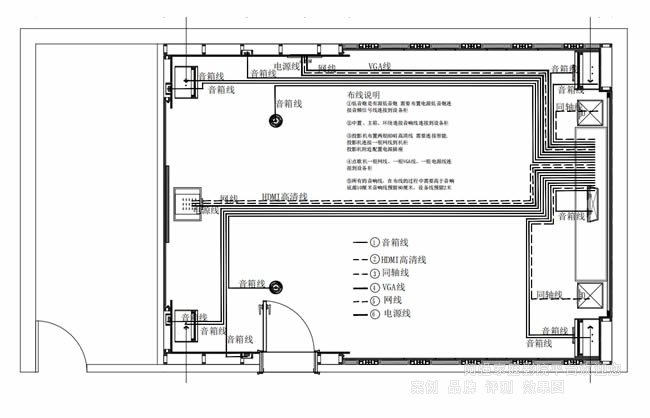
3、电源与布线规划不足:预埋管线与专用电路
家庭影院系统涉及众多设备,对电源和布线的要求远超普通家电。如果在装修时没有进行预先规划,后期裸露的线材不仅影响美观,更可能带来安全隐患和信号干扰。

二、核心设备选购:避开常见误区,理性投资
进入设备选购环节,您会面临纷繁复杂的技术参数。请记住,理性投资的关键在于“平衡”与“适配”,而非盲目追求顶级配置。每一分预算都应用在能显著提升您观影体验的刀刃上。
1、投影机选择:亮度、对比度与分辨率的权衡
选择家庭影院投影机时,切忌陷入单一参数的误区。这三个核心指标需要根据您的实际环境进行综合权衡。
2、音响系统配置:声道布局与音箱类型选择
一套优秀的家庭影院音响系统是沉浸感的核心,其配置需要与您的空间大小和预算相匹配。


天空声道必须物理,拒绝纯反射
低音炮至少 2 只,多炮阵列更优
功放必须支持全景声 + IMAX Enhanced
必须有声场校准功能(Dirac/Audyssey/YPAO/RC)
大空间的音箱要配置纯后级
3、功放与播放器:兼容性与未来升级考量
功放(AV接收机)是整个家庭影院系统的神经中枢,而播放器则是内容的源头,它们的选择直接影响系统的稳定性和扩展性。
正确方案:
清单1:检查HDMI接口版本。 这是决定你系统未来扩展性的关键。务必选择支持HDMI 2.1标准的功放。这不仅是为了未来的8K电视,更是为了当下支持4K@120Hz高帧率的游戏主机(如PS5, Xbox Series X)和播放设备。
清单2:解码能力是核心。 确认功放是否支持最新的沉浸式音频格式,特别是杜比全景声(Dolby Atmos)和DTS:X。没有它们的解码能力,你就无法体验到来自头顶的“天空声道”,声音的立体感和包围感会大打折扣。
清单3:关注自动校准技术。 这是普通用户获得好声音的“黑科技”。主流的房间声学校准技术,如Audyssey、Dirac Live、YPAO、ARC等,能通过麦克风测量你房间的声学缺陷,并自动进行补偿。一个带有优秀校准功能的功放,其效果远胜于一台徒有大功率的“傻瓜”功放。
不要过度依赖投影机或电视内置的智能系统,一台独立的高性能播放器能提供更流畅的体验和更全面的格式支持。
高性能播放器推荐:4K蓝光碟机和硬盘播放机,加上网络盒子Apple TV 4K 和 NVIDIA Shield TV Pro 是2026年依然强劲的选择。它们拥有强大的处理核心、完善的App生态和对各种高规格音视频格式的良好支持。
流媒体平台支持:在选择时,要确认设备是否支持你常用流媒体平台(如Netflix、Disney+)的最高规格,例如杜比视界和杜比全景声。
网络要求:稳定播放高码率的4K甚至8K流媒体,对网络要求很高。我们强烈建议使用千兆有线网络连接你的播放器,以避免无线网络可能出现的卡顿和缓冲。
三、显示设备:投影幕布与电视的选购陷阱
画面的呈现是家庭影院体验的最终载体,选择投影幕布或大尺寸电视时,参数的背后隐藏着许多容易被忽视的细节。错误的搭配不仅会浪费投影机或播放器的高性能,更会直接影响观影的沉浸感。
1、投影幕布:增益、材质与尺寸匹配
选择投影幕布时,切勿认为“越大越好”或“越贵越好”。您需要关注以下几个关键匹配点,以确保它能与您的投影机和环境相得益彰:

2、大尺寸电视:刷新率、HDR与接口配置
如果您选择大尺寸电视作为显示设备,除了分辨率外,以下三个技术规格直接决定了动态画面的流畅度和色彩表现力:

3、光源与环境光:如何避免画面失真
无论是投影还是电视,环境光都是影响画质的最大敌人。忽视环境光控制,再好的设备也无法呈现出应有的效果。

四、音效优化:打造震撼听觉体验的关键
拥有了优质的音响系统,仅仅是成功的一半。正确的设置和校准,才是释放其全部潜能,将您带入身临其境声场之中的关键。声音效果的优劣,直接决定了家庭影院的沉浸感,因此请务必重视以下优化步骤。
1、音箱摆位:立体声场与环绕效果的秘诀
音箱的物理位置是构建精准声场的基础,错误的摆放会让昂贵的设备效果大打折扣。请遵循以下基本原则进行设置:
2、低音炮配置:数量、位置与频率响应
低音炮负责营造电影中的震撼感和氛围,但其摆放极具技巧性,因为低频声波很容易在房间内产生不均匀的“驻波”。
3、声场校准:自动与手动调试的技巧
现代功放大多配备了自动声场校准系统(如Audyssey, YPAO, Dirac Live等),这是您优化音效的得力助手。

五、智能集成与片源:提升便利性与内容体验
一套出色的家庭影院系统,不仅需要卓越的音画表现,便捷的操作和丰富的高品质内容同样至关重要。当硬件设备就位后,下一步就是将它们无缝整合,并确保有源源不断的高清片源,这直接决定了您的日常使用体验。
1、智能中控系统:设备联动与场景设置
您需要避免陷入“遥控器地狱”,为投影机、功放、播放器和灯光各配一个遥控器会极大削弱观影的乐趣。正确的做法是投资一套智能中控系统,实现所有设备的联动。通过预设“观影模式”、“音乐模式”等不同场景,您可以一键完成所有操作:灯光缓缓变暗、幕布自动降下、投影机与功放同步开启并切换到正确的输入源。这不仅提升了便利性,更营造了专属的仪式感。
2、片源获取:正版高清与区域限制
高质量的硬件需要同样高质量的片源才能发挥其最大潜力。您应当优先选择4K UHD蓝光光盘或主流的流媒体服务(如Netflix, Disney+, Apple TV+等)来获取正版高清内容。它们能提供最佳的画质和杜比全景声(Dolby Atmos)等次世代音轨。请注意,部分流媒体内容存在区域限制,可能需要通过特定网络服务解决。避免使用低码率的盗版资源,它们会严重浪费您的设备性能。
国内目前主流的除蓝光播放器外便是硬盘播放机加影库功能或者使用硬盘拷贝及CD2挂载网盘等。
3、网络带宽:流畅观看的保障
对于依赖流媒体的家庭影院而言,稳定且高速的网络是基础保障。观看4K HDR内容通常要求至少25Mbps的稳定带宽,而考虑到家中其他设备同时联网的需求,建议您预留100Mbps或更高的带宽。为保证信号稳定,应优先使用有线网络连接您的播放设备(如Apple TV、NVIDIA Shield或蓝光播放机),而不是Wi-Fi。
六、预算管理:避免超支与不必要的投入
一个清晰的预算规划是您成功搭建家庭影院的基石,能有效防止因冲动消费而导致的超支。科学的资金分配不仅能让每一分钱都花在刀刃上,还能确保最终的影音效果达到预期。
家庭影院避坑终极Checklist
在你最终敲定方案前,请逐一核对以下清单:
硬件选购检查清单
空间布局检查清单
隐蔽工程检查清单
1、合理分配:核心设备与周边配件的比例
在制定家庭影院预算时,明智的做法是将大部分资金(通常建议占总预算的60%-70%)投入到核心设备上。这包括直接影响画质和音质的“三大件”:显示设备(投影机或电视)、AV功放以及主音响系统(前置、中置和环绕音箱)。剩下的预算则可以分配给低音炮、播放器、线材、幕布以及声学材料等周边配件。这样的分配策略能确保您在关键性能上不妥协,从而保障整体的观影体验。
2、长远规划:预留升级空间与兼容性
构建家庭影院不应只着眼于当下。在选择设备,特别是AV功放时,要考虑其未来的升级潜力。例如,选择支持最新音视频格式(如Dolby Atmos、DTS:X)和更高规格接口(如HDMI 2.1)的功放,可以为您未来升级到8K显示设备或增加更多声道预留空间。这样做虽然初期投入可能稍高,但从长远来看,避免了因技术迭代而需要频繁更换整套系统的成本。
3、避免过度消费:按需选择,不盲目跟风
市场上的高端设备层出不穷,但并非所有功能都适合您的实际需求。在选购前,请冷静评估您的使用场景和房间条件。例如,在一个较小的房间里,一套顶级的全景声系统可能无法发挥其全部效果,反而造成浪费。您应该专注于那些能切实提升您观影体验的功能,而不是盲目追求参数上的“顶级配置”。记住,最适合您的,才是最好的。










