在北京顺义别墅区,我们遇到了一位特殊的影音发烧友。他深耕艺术品行业多年;口罩后,他购置了这栋别墅大宅,希望在新居地下室打造一处专业的私人影音娱乐空间。这套大宅的整体设计由国外设计师操刀,国内施工团队配合落地——影音室也不例外。阿强作为项目影音顾问,我从毛坯房阶段便开始介入,在设备分布、声学规划、风格融合等维度提供系统性建议,历经多方优化,最终完成了这套7.2.4声道劲浪定制嵌入影院和K歌娱乐系统的打造。
这间影音室的先天条件较为特殊,并非原生独立空间,而是由开放式区域改造而成,空间规划成为整个项目的首要难点,也是决定最终影音效果的关键。
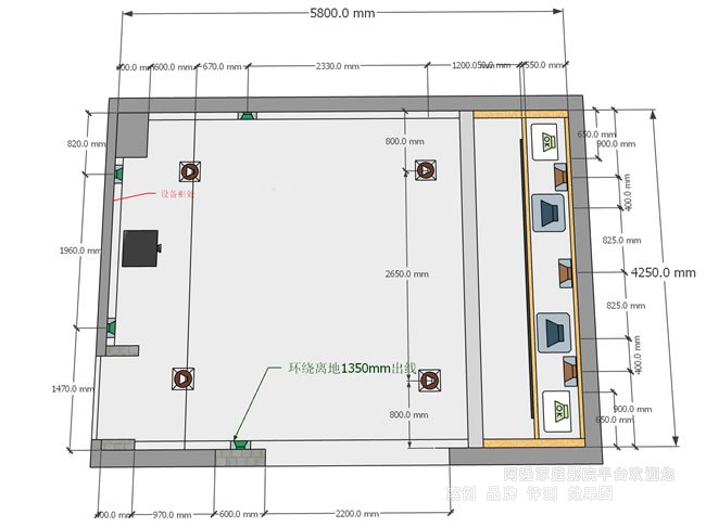
首先明确空间基础参数。改造后房间总面积约25平米,宽4.2米、长5.6米,空间高度呈现差异化,最高点约2.88米,中间有一道横梁横穿,梁下高度仅2.58米,不仅影响空间美观度,还可能对声场传播造成干扰;同时,空间有两个门洞——后墙有一个1米宽的标准门洞,右侧墙有一个2800mm宽的大洞口,尤其侧面大洞口的存在既破坏了空间的密闭性,也给侧环绕音箱的摆放带来了极大挑战。
针对这些痛点,影音阿强给出了针对性解决方案,全程跟进施工落地:
门洞与侧环绕布局优化:右侧墙2800mm宽的大洞口无法直接利用,且会导致侧环绕音箱无合理安装位置,团队经过测算,建议施工方增加一道约600mm厚的墙体,既封闭了部分洞口,又为侧环绕音箱提供了专属安装空间,同时增加活动玻璃门和遮光窗帘,保证了空间的密闭性和遮光需求,减少声音泄漏,为良好声场打下基础;后墙1米宽的标准门洞必需保留,兼顾空间通行需求,做隔音门处理,降低噪音干扰。

室内风格与功能融合。设计初期,团队结合业主喜好,提供了简约中式风的设计图纸,计划用透声布隐藏劲浪嵌入式音箱,后墙设置嵌入式吧台用于放置影音设备;后期为了与别墅整体现代简约轻奢的装修风格统一,对设计进行了优化:采用木饰面的温暖纹理搭配暖色吸音材料,既提升了空间精致度,又避免了繁杂感,同时不影响声学效果;顶面采用人字型木屋造型,在保留多声道影院核心功能的基础上,增加一套专业卡拉OK系统,满足业主多元化娱乐需求,同时提前预埋智能线路,为后期升级智能操控系统预留空间,实现“一次装修,长期适配”。
法国劲浪300系列嵌入式音箱,颜值与性能双在线
音频系统采用7.2.4声道架构,这是目前中高端家庭影院的主流配置,能够实现360°全环绕声场,带来沉浸式观影体验。考虑到业主对隐藏式安装的需求,以及对音质的极致追求,团队最终选定了法国劲浪全原装进口300系列嵌入式音箱——该系列自推出便斩获年度家庭影音类EISA大奖,是嵌入式音箱领域的标杆产品,既能完美融入装修风格,又能保证专业级音质表现。

这款音箱的核心优势,恰好适配本次案例的需求:其一,安装便捷性,采用智能夹设计,定制安装更轻松,无框架磁性网罩让安装效率大幅提升,适配嵌入式安装的核心需求,其二,音质表现出众,搭载亚麻单元和玻璃纤维锥盆,能够呈现自然温润的中音、精准有力的低音,以及清晰通透的整体音质,倒置圆顶高音单元则能传递出清晰而富有生气的高频音效,无论是电影中的爆炸声、人声对白,都能做到精准细腻,满足发烧友的严苛要求;
值得注意的是,嵌入式音箱的安装并非简单“塞进墙里”,团队在选购阶段便结合空间尺寸,确定了每一只音箱的安装位置、角度,确保7.2.4声道的声场均匀覆盖,这也是嵌入式系统比传统落地式音箱更考验专业度的地方——每一个安装细节,都直接影响最终的声场表现。
焦点透声幕+爱普生激光投影,还原影院级视觉体验
视频系统的核心需求是“清晰、明亮、真实”,结合25平米空间的观看距离(4米宽、6米长的空间,最佳观看距离约4.5米),团队选定了焦点150英寸画框式编织透声幕布,搭配爱普生LS12000激光投影机。
焦点150英寸画框编织透声幕布,采用双层斜纹编织结构,由0.4mm扁平纤维编织而成,核心优势的是透声性极佳——能够让幕布背后的中置、主音箱声音顺利穿透,且高频衰减极小,避免声音被幕布阻隔,实现“声画合一”,让观影者感受到声音与画面的完美融合;同时,其幕面平整,色彩还原度高,能够精准呈现投影机的画质细节,且编织纹理细腻,远观几乎不可见,不影响视觉体验,完美适配隐藏式音箱的安装需求。

搭配的爱普生LS12000激光投影机,是一款专业级家庭影院投影机,搭载全新一代四合一阵列式激光光源和3LCD显示芯片,2700流明的高色彩亮度,能够保证在正常光线环境下,画面依然清晰明亮,无需刻意拉暗房间光线;2500000:1的超高对比度,搭配爱普生DeepBlack邃影®技术,能够呈现出深邃的黑色和鲜明的色彩层次,还原电影本身的色彩质感,无论是暗场画面的细节,还是明亮场景的色彩张力,都能完美呈现;同时支持4K超清分辨率和4K 120fps插帧技术,画面细节纤毫毕现,动态画面流畅无拖影,满足发烧友对画质的极致追求。
圣歌旗舰功放+双播放机,保障系统稳定与节目源丰富度
AV影音中心是整个家庭影院的“大脑”,负责音频解码、功率放大、设备联动,其性能直接决定了音频和视频的最终呈现效果。阿强选用加拿大圣歌MRX1140旗舰级合并式功放,这款功放是圣歌MRX系列的旗舰型号,完美适配7.2.4声道系统,具备11声道放大能力,支持Dolby Atmos、DTS:X以及IMAX Enhanced等高端音效格式,能够充分释放劲浪音箱的音质潜力。
圣歌MRX1140的核心亮点的是其独有的第三代ARC Genesis声场校正功能——通过专用收音麦克风,可对房间内5-10个位置进行声学侦测,耗时30-60分钟即可完成校正,能够精准修正房间声学缺陷,平衡各个声道的频率响应,让声音还原更真实,临场感更强;同时,该机提供多声道前级输出,支持15.2声道处理,若后期业主有更大推力需求,可增加后级功放,预留了性能升级空间;此外,其配备的网页版操控界面,可通过电脑、手机远程设置参数,操作便捷,即使是新手也能轻松上手。
节目源方面,团队为业主配置了4K蓝光播放机和网络媒体硬盘播放机,双播放机搭配,满足不同观影需求:4K蓝光播放机可播放实体蓝光碟片,还原最纯正的电影画质和音质,适合发烧友观看经典影片;网络媒体硬盘播放机带有影库功能,支持在线网络节目播放,且会定时更新多声道电影资源,无论是日常休闲观影,还是发烧友的深度品鉴,都能轻松满足,真正实现“随心看、任意选”。
对于嵌入式家庭影院而言,安装调试的难度远高于传统落地式系统,“三分设备,七分安装”这句话在此体现得淋漓尽致。影音阿强全程跟踪安装过程,从设备预埋、墙体开孔,到音箱安装、系统调试,每一个环节都严格把控,攻克了多个核心痛点。
嵌入式音箱安装精度把控。劲浪300系列嵌入式音箱的安装,对开孔尺寸、深度、角度都有严格要求,一旦偏差,不仅会影响音箱的音质表现,还会破坏墙面美观。提前给出详细的开孔尺寸图纸,指导施工方精准开孔,同时在安装时,利用激光定位仪确保每一只音箱的声轴都精准指向最佳聆听位置(皇帝位);安装完成后,对音箱与墙体之间的缝隙进行声学密封处理,避免声音从缝隙泄漏,造成能量损失和杂音,同时安装无框架磁性网罩,与墙面无缝贴合,保证视觉统一性。
横梁隐藏与声学融合。在横梁包裹施工过程中,团队全程跟进,确保木饰面包裹后的空间高度均匀,顶面人字型木屋造型的施工,也结合声学需求,在造型内部嵌入吸音材料,既保证了美学效果,又提升了空间的声学性能,减少驻波和回声的产生,且斜面正好为吸顶音箱提供了天然的角度,让直达声声入耳。
系统调试与声场优化。设备安装完成后,团队利用圣歌MRX1140的ARC Genesis声场校正功能,进行全方位的声场调试——通过专用麦克风采集房间内多个位置的声学数据,自动生成均衡曲线,修正房间声学缺陷;同时,手动调整各声道的音量、延时,确保7.2.4声道的声音同步到达聆听位置,实现360°无死角的环绕声场。
此外,团队还对线路进行了规范整理,所有预埋线路均进行套管保护,接线端子做好抗氧化处理,确保系统长期稳定运行;同时,调试智能线路预留接口,确保后期升级智能操控系统时,无需重新布线,降低升级成本。
经过大半年的跟踪打造,从毛坯房到成型的专业影音室,这间25平米的空间最终呈现出令人惊艳的效果——现代简约轻奢的风格与别墅整体装修完美融合,木饰面的温暖与暖色吸音材料的质感相得益彰,顶面人字型木屋造型增添了空间层次感,劲浪嵌入式音箱、焦点透声幕布、爱普生投影机或隐藏或外装,没有丝毫突兀感,整体空间简洁大气,兼具美学与实用性。
影音体验方面,7.2.4声道的劲浪300系列音箱,在圣歌MRX1140功放的驱动下,展现出卓越的音质表现:中置音箱人声清晰温润,精准还原电影对白;主音箱和侧环绕、顶置音箱协同工作,形成沉浸式环绕声场,电影中的爆炸声、脚步声、风声仿佛就在耳边,临场感十足;亚麻单元和玻璃纤维锥盆的加持,让低音饱满有力,不浑浊、不拖沓,高音清晰通透,无刺耳感;经过ARC Genesis声场校正后,整个声场均匀分布,临场感更强。
视频方面,150英寸的焦点透声幕布搭配爱普生LS12000激光投影机,呈现出影院级的视觉效果:4K超清画面细节纤毫毕现,色彩还原真实自然,高对比度让暗场细节清晰可见,明亮场景色彩饱满,搭配透声幕布的声画同源优势,真正实现了“声画合一”,观看大片时,比商业院线更震撼。
此外,专业卡拉OK系统的加入,让空间功能更加多元化,业主在繁忙的工作之余,可邀请朋友在家K歌娱乐;双播放机的配置,满足了不同场景的观影需求;预留的智能线路,为后期升级智能操控系统打下基础,可实现灯光、影音设备的一键控制,提升使用便捷性。
影音阿强通过精准的空间规划,开放式空间改造、横梁隐藏、门洞优化等多个点;通过专业的设备选型,实现了隐藏式安装与专业级声画表现的完美平衡;通过细致的安装调试,确保每一款设备都能发挥最佳性能,最终为业主打造了一套兼具专业度与实用性的家庭影院系统,轻松享受极致的影音生活。


















